
前 言
《中国机械工程学会机械工程师资格考试大纲(试行/2010年版)》(以下简称《大纲(试行/2010年版)》),于2011年4月发布并实施。
《大纲(试行/2010年版)》是中国机械工程学会为开展我国机械工程技术人员技术资格认证工作制定的考试标准文件之一。它是机械工程师技术资格认证申报者参加“综合素质与综合技能”考试的备考依据,是资格考试命题的依据,也是修订和编写《机械工程师资格考试指导书(2版)》等学习教材和助学辅导的依据。
《大纲(试行/2010年版)》共分四个部分:Ⅰ.基本要求,Ⅱ.考试内容,Ⅲ. 有关规定和说明,Ⅳ.样题示例。
《大纲(试行/2010年版)》的第Ⅰ部分所述基本要求旨在表明,作为一名合格的机械工程师,应与时共进,积极适应当今世界制造业全球化、信息化、绿色化、智能化和服务化的发展趋势,努力和不断提高自身的综合素质和综合技能,成为具有良好职业道德和创新理念,掌握机械工程技术,懂得经济、管理知识以及有关国际通则和法律法规的新一代机械工程专业技术人员。
《大纲(试行/2010年版)》的第Ⅱ部分所列考试内容旨在体现,一名合格的机械工程师除应具备《工程教育专业认证标准(试行)》所规定的主要基础知识与专业知识外,更重要的是申报者工作后运用这些知识所应获得的实践经验与技能,还涉及大学毕业后应扩展的新知识,是对申报者综合素质和综合技能的全面考核。因此,申报者欲达到《大纲(试行/2010年版)》提出的基本要求并通过资格考试,必须要有较扎实的大学基础、毕业后踏实的工作实践和工作期间接受继续教育的不断积累。
《大纲(试行/2010年版)》的第Ⅲ部分所列有关规定和说明旨在规范,资格考试的考试形式、时间、注意事项和考试试卷的结构、试题分布、题型题量、难易程度等方面,并对有关规定予以说明。
《大纲(试行/2010年版)》的第Ⅳ部分所述第一单元“综合素质考试”和第二单元“综合技能考试”的样题示例,旨在为申报者提供一份参考资料。
Ⅰ.基本要求
1.了解机械行业相关标准体系。熟悉标准化基本知识和标准化审查内容。掌握机械制图标准和各种机械工程图样表示方法,掌握机械图样的绘制和尺寸标注,掌握极限与配合、形位公差、表面粗糙度的标注和选用。
2.了解常用工程塑料、特种陶瓷的性能、成型或加工方法及应用,了解复合材料的种类及应用。熟悉钢的热处理原理,熟悉典型零件的热处理方法和选用,熟悉常用金属材料的性能、试验方法及其选用,以及掌握相关技能。掌握常用金属材料热处理的方法和选用。
3.了解新产品设计程序及机械设计包含的主要内容,了解主要现代设计方法的基本概念、适用场合和设计原则。熟悉常用机械零、部件设计的共性问题和基本原则,熟悉液压传动和气压传动的基本原理和设计要点,熟悉电动机的工作原理及其电气调速制动的方法,以及掌握相关技能。掌握机械产品设计的基本知识与技能,掌握常用机械零、部件的功能、结构特点、主要失效形式、设计计算的准则和方法,掌握常用机械传动的工作原理和特点、主要失效形式、适用场合、设计准则和设计方法。
4.了解特种加工、表面工程技术的基本技术内容、方法和特点,了解生产线设计和车间平面布置原则和知识。熟悉铸造、压力加工、焊接与切割、切(磨)削加工、装配等机械制造工艺的基本技术内容、方法和特点并掌握相关重点,熟悉工艺方案和工艺装备的设计知识,以及掌握相关技能。掌握制订工艺过程的基本知识与技能,掌握制订典型零件加工工艺规程和加工工艺尺寸链、装配尺寸链的计算方法,掌握发现、分析和解决生产现场出现的一般工艺问题的方法。
5.了解现代企业管理的理念、方法及应用。熟悉机械制造企业的职业健康与安全、环境保护的法律法规、标准知识,熟悉与职业相关的道德、法律法规知识,熟悉设备维修管理的基本知识,熟悉工程项目的评价方法,熟悉生产率提高的方法和现场管理方法。
6.了解质量管理、质量保证体系及ISO9000(GB/T19000)族质量管理体系标准的基本知识和要求。熟悉机械产品及零、部件的检测技术,熟悉各种几何量、机械量、物理量及形位误差的检测量具及检测方法,熟悉产品生产过程质量控制的基本方法、统计分析与控制方法及相关分析,以及掌握相关技能。
7.了解数字控制(NC)和计算机数控(CNC)的基本知识,了解可编程序逻辑控制器(PLC)的基本知识,了解物流自动化、信息流自动化、管理自动化和机器人的基本概念,了解典型机械制造自动化系统的基本组成和工作过程,了解计算机辅助工艺规划(CAPP)、计算机辅助制造(CAM)、计算机辅助工程(CAE)和计算机集成制造系统(CIMS)的基本知识及应用,了解计算机网络技术在机械工程中的应用,了解计算机仿真技术和计算机虚拟制造技术在机械工程中的应用。熟悉机械零件加工的数控编程方法及PLC可编程逻辑控制器编程,熟悉机械制造自动化技术、柔性自动化加工设备和各类数控机床的基本知识,熟悉机械零、部件计算机辅助设计(CAD)的基本知识,以及掌握相关技能。
Ⅱ.考试内容
一、机械制图、极限与配合、机械工程相关标准
1.机械制图的一般表示方法与选用
(1)图纸和图框、标题栏的型式及其选用
(2)图样视图与图面布置、图形比例、图线、剖面符号与线型及其选用
(3)图形简化画法的规定和使用
2.标准件与常用件的画法和标注
(1)螺纹传动及紧固件(螺纹 外螺纹与内螺纹 圆锥螺纹 内螺纹和外螺纹连接 螺纹紧固件)
(2)齿轮、齿条、蜗杆、蜗轮及链轮(齿轮 齿条 蜗杆 蜗轮 链轮 啮合齿轮)
(3)花键(矩形外花键 矩形内花键 渐开线花键 花键连接)
(4)圆柱类弹簧(圆柱螺旋压缩弹簧 圆柱螺旋拉伸弹簧 圆柱螺旋扭转弹簧 装配图中弹簧)
(5)滚动轴承
3.图样尺寸、极限与配合、形位公差和表面粗糙度的标注及选用
(1)图样尺寸(基本规定 标注方法)
(2)极限与配合(基本概念 标准公差 极限 配合 优先配合 形位公差)
(3)表面粗糙度(评定参数 标注符号及代号 参数值的选择)
4.零件图和装配图的绘制和标注
(1)零件图(视图选择 尺寸标注 工艺结构 技术要求)
(2)装配图(视图表示 尺寸 零件表示 技术要求)
5.机械工程相关标准和应用
(1)标准与标准化(标准 标准化)
(2)国家标准(标准体系 制定原则 通用基础标准 机械工程相关的国家标准)
(3)行业标准与企业标准(机械行业标准及其体系 制定原则 企业标准)
(4)国际标准与国外先进标准(ISO、IEC EN欧洲区域标准 工业发达国家的国家标准 先进协会/团体标准 先进企业标准)
(5)产品标准化审查(技术文件 技术图样)
二、工程材料
1.工程材料的分类和性能
(1)工程材料的分类(金属 陶瓷 高分子 复合)
(2)工程材料的性能(力学性能 物理性能 化学性能 工艺性能)
2.金属材料及其热处理
(1)金属的晶体结构(晶体的特性 金属的晶体结构 金属的结晶 纯金属在固态下的转变 合金的相结构)
(2)铁碳合金相图(典型铁碳合金结晶过程分析 碳对铁碳合金平衡组织和性能的影响 铁碳相图的应用)
(3)金属材料的化学成分分析、金相分析和无损探伤
(4)金属材料的热处理(钢 铸铁 非铁金属和合金 热处理设备 典型零件热处理应用实例)
(5)常用金属材料(钢 铸铁 非铁金属和合金)
(6)金属材料的选用依据(使用性能 工艺性能 经济性)
3.工程塑料、特种陶瓷、复合材料
(1)工程塑料(常用热塑性工程塑料 常用热固性工程塑料 工程塑料的加工 工程塑料的应用)
(2)特种陶瓷(特种陶瓷的性能和应用 陶瓷材料的加工)
(3)复合材料(性能 种类 应用)
三、机械产品设计
1.新产品设计程序
(1)可行性分析(市场调研 产品定位 可行性分析报告)
(2)概念设计(功能分析 方案设计 设计任务书)
(3)技术设计(工作内容与要求 机构运动设计 机械结构设计)
(4)设计评价与决策(评价目标 准则 评价方法)
2.机械系统设计概论
(1)机器与机构(组成 基本原理 机构运动简图的绘制 平面机构自由度计算)
(2)机械系统中摩擦、磨损和机械效率(摩擦和机械效率 减少摩擦与磨损的方法 机械的自锁)
(3)机械零件设计准则(强度 刚度 寿命 散热性 可靠性准则)
(4)制造工艺性设计(零件制造工艺性设计 机器装配工艺设计)
(5)机械振动与噪声(振动 噪声源与危害 防止和降低有害振动、噪声的措施)
(6)安全性(安全设计的原则 防护设计)
(7)计量单位和优先数系(计量单位标准 数系标准)
3.机械零、部件设计
(1)机械传动(齿轮传动 蜗杆传动 带传动 链传动 螺旋传动 连杆机构 凸轮机构)
(2)连接件(螺栓 键 销 联轴器 过盈连接 )
(3)轴与轴承(轴 滑动轴承 滚动轴承)
(4)操作调节与控制件(弹簧 离合器 制动器)
(5)机架件和导轨(箱体 机架件 导轨)
(6)减速器和调速器设计(减速器 调速器)
4.气动、液压的传动控制系统
(1)常用气动、液压元件(泵 马达 控制阀)
(2)气动、液压传动原理及系统设计(气动系统基本回路 液压系统基本回路)
(3)密封设计(动密封)
(4)气动、液压系统常见故障诊断与维护(气动系统 液压系统)
5.电气传动基础
(1)电动机的类型(直流电动机 异步电动机 同步电动机 直线电动机 伺服电动机)
(2)电气调速方法(直流电动机 异步电动机)
(3)电气制动方法(直流电动机 异步电动机)
(4)电动机的选用
6.现代设计方法
(1)优化设计
(2)可靠性设计
(3)有限元分析
(4)模块化设计
(5)其他设计方法(并行设计 绿色设计 TRIZ 人机工程设计 模块化设计)
四、机械制造工艺
1.铸造
(1)铸造工艺基础(铸件形成过程 合金的铸造性能 铸件缺陷的生成及分类)
(2)铸造工艺两大类别及特点(砂型铸造生产流程及其特点 特种铸造生产流程及其特点)
(3)铸造工艺设计(步骤 内容和结果 铸件结构的工艺性审查和改进 确定铸造工艺方案 确定铸造工艺参数 砂芯设计 浇注系统设计 冒口设计)
(4)铸造合金及其熔炼、处理工艺(铸铁 铸钢 铸造铝合金件 铸铁的冲天炉熔炼 铸钢的电弧炉熔炼 中频感应电炉熔化铸钢、铸铁及非铁合金)
(5)砂型铸造(砂型结构 砂型(芯)种类及适用范围 造型材料 砂型铸造工艺装备设计 造型、制芯方法及其工艺、设备、工艺装备 砂型铸造其他工序控制要点 典型砂型铸件成套生产工艺)
(6)特种铸造工艺(熔模精密铸造 金属型铸造 压力铸造)
2.压力加工
(1)压力加工特点及其分类(特点 分类)
(2)轧制(特点 轧制工艺分类 轧制缺陷与轧制件质量控制 丝杠轧制成形 轧制件结构工艺性)
(3)挤压(分类 特点 挤压缺陷及挤压制件质量控制)
(4)锻造(分类 特点 自由锻 模锻 锻造缺陷与锻造件质量 工艺路线设计)
(5)冲压(特点 分类 冲压工艺的应用要求 冲模种类及基本结构 冲压缺陷与冲压件质量控制 工艺路线设计)
3.焊接与切割
(1)常用焊接与切割加工方法的类型、特点及应用(焊条电弧焊 埋弧焊 气体保护焊 气焊与气体火焰切割 电阻焊 钎焊 其他焊接方法 特点 焊接工艺 应用)
(2)常用金属材料的焊接(金属材料的焊接性 常用金属材料焊接)
(3)焊接结构工艺性(焊接结构材料选择 焊缝布置 焊接接头设计)
(4)焊接缺欠及其防治方法( 常见焊接缺欠及防止措施 焊接缺欠的危害及返修 降低焊接残余应力和焊接变形的措施)
4.切(磨)削加工
(1)切(磨)削加工基本知识(切削、切削运动、机床与刀具的基本概念 金属切除率 切削力 切削热与切削温度 刀具磨损与刀具使用寿命 切削加工分类及典型表面加工方案 经济加工精度)
(2)刀具结构、角度和刀具材料(刀具的分类 刀具切削部分结构和刀具角度 刀具角度和刀尖形状的选择原则 刀具材料的选择)
(3)切(磨)削工艺特点和加工表面类型(车削 铣削 磨削)
(4)机床夹具(分类 设计)
(5)加工表面质量和精度( 加工表面质量 加工精度)
5.特种加工
(1)特种加工方法分类和特点
(2)电火花加工(电火花成形 电火花线切割)
(3)激光加工(原理、特点和分类 加工设备 打孔 切割).
(4)快速成形制造技术
(5)超声加工
6.表面处理
(1)表面处理的特点和分类(表面处理特点 表面工程技术分类)
(2)涂装技术(涂装材料 涂装工艺与装备 典型产品涂装)
(3)发蓝工艺(工艺方法 应用)
(4)磷化工艺(工艺方法 应用)
(5)喷丸及滚压强化(受控喷丸强化 表面滚压技术)
(6)热喷涂技术(常用热喷涂工艺分类和热喷涂技术特点 热喷涂工艺流程 热喷涂工艺方法 热喷涂材料 热喷涂技术的应用)
(7)电镀(电镀的实施方式 电镀种类及应用)
7.机械加工工艺规程设计
(1)机械加工工艺规程基本概念
(2)工艺规程设计的依据和步骤(设计依据 设计步骤)
(3)产品结构工艺性审查(目的 应考虑的主要因素 审查内容)
(4)定位基准选择(基准的概念 精基准 粗基准)
(5)工艺路线设计(表面加工方法选择 加工阶段划分 加工顺序安排 工序合理组合)
(6)加工余量、工序尺寸和公差确定(加工余量概念 影响加工余量的因素 确定加工余量、工序尺寸和公差的方法)
(7)尺寸链和工艺尺寸计算(尺寸链 工艺尺寸链 工艺尺寸链求解)
(8)工艺方案的技术经济分析(评价原则 分析与比较 工艺路线优化)
(9)典型零件工艺设计示例(箱体件 主轴 圆柱齿轮)
8.工艺装备的设计与制造
(1)工艺装备类型(工艺装备 工艺装备的类型)
(2)工艺装备选择与设计的依据、原则和步骤(依据 原则 步骤)
(3)工艺装备设计(或选择)的技术经济评价和验证(技术经济评价 工艺装备的验证)
9.车间生产设备的布置方法
(1) 产品种类与生产量分析
(2)车间设备的布置方式
10.装配
(1)装配工艺规程(装配过程 装配精度 装配尺寸链 装配方法 装配工艺过程设计步骤 影响装配质量的主要因素)
(2)装配方法类型及其选择(完全互换装配法 部分互换装配法(亦称大数互换装配法) 选择装配法 修配装配法 调整装配法)
(3)典型部件装配(滚动轴承部件 圆柱齿轮传动部件)
五、企业管理与工程经济
1.环境保护、职业健康安全、设备维修
(1)环境和职业健康安全管理体系标准(名称及依据的认证标准 共同本质特征 14001/18001标准条款结构及内容特征)
(2)环境因素/危险源的类别及三条有效控制途径(类别 性质及其兼容性 有效控制途径)
(3)机械工厂的污染物排放类法规及确定排放限值方法(法律法规 污染物排放标准选定及排放限值确定 工业废气、废水、厂界噪声排放的通用要求及排放限值 工业固体废物分类收集、贮存、处理的通用要求)
(4)机械工厂的职业健康类法规及作业场所的有害因素限值(作业场所的主要职业健康类法律法规 主要职业危害因素与职业病 化学性职业危害因素控制要求 作业场所的噪声与振动危害因素控制要求)
(5)机械工厂的安全生产类法规及工伤、突发事故的防治措施(主要安全生产类法律法规 工伤、突发事故危险源及其防治措施)
(6)设备维修(设备零件失效的基本形式 基本方式 维修方式的选择)
2.与职业相关的道德、法律法规知识
(1)道德规范(公民基本道德规范 公民道德建设的主要内容 机械工程师职业道德规范)
(2)财务及税务制度(会计基本制度 财务三表 税种、税率)
(3)知识产权及有关知识产权的法律法规(知识产权含义 知识产权的特征 知识产权范围 知识产权制度系统的构成 知识产权制度的特点 我国知识产权法律保护制度系统 专利法 著作权法 计算机软计保护条例 集成电路布图设计保护条例 商标法 反不正当竞争法)
(4)现代企业制度相关法律(公司法 合同法 招标投标法 工业产品生产许可制度)
(5)WTO规则和政府产业政策(历史和我国的承诺 WTO基本原则 WTO的四大宗旨 反补贴与反倾销 加入WTO对我国社会的影响)
3.工程经济
(1)经济学基本概念(需求 供给 供给和需求平衡 市场 市场经济 指令经济和混合经济)
(2)成本分析(成本分类 量—本—利关系 量—本—利分析 量—本—利分析的应用)
(3)价值工程(基本概念 实施价值工程的基本程序 选择对象 功能分析 提出改进设想 分析与评价方案 试验、检查、评价效果)
(4)工程项目的评价(经济评价 社会效益评价 生态效益评价 风险分析 可行性研究)
4.管理
(1)管理的基本职能(管理的含义 管理的基本职能)
(2)现代企业制度(企业所有制 两权分离 企业财产组织形式 公司治理结构)
(3)生产率分析与提高(生产率 作业方法研究 时间研究 熟练曲线 人因工程)
(4)物流基础(物流及其系统的基本概念 制造企业的物流系统 常用物料搬运设备的特点及选用 供应链和供应链管理)
(5)现场管理(5S活动 定置管理)
5.现代企业管理
(1)制造模式的变化和先进制造模式(大量生产的制造模式 成组技术 数控技术和单元制造 当代的先进制造模式)
(2)MRP/MRPⅡ/ERP(MRP MRPⅡ ERP)
(3)精益生产(准时制(JIT)生产 看板管理)
(4)项目管理(项目及项目管理概念 项目管理三要素和目标 项目管理的过程和内容)
(5)灵捷制造(产生背景 基本概念 企业灵捷化案例)
六、机械产品质量控制
1.产品检测技术
(1)检测技术概念(检验 测量 检测程序)
(2)测量方法的类型及应注意的问题(类型 应注意的问题)
(3)测量器具(几何量测量 机械量测量 其他物理量测量)
(4)形位误差的检测技术(检测的基本原则 直线度和平面度 圆度和圆柱度 平行度和垂直度 跳动 同轴度和对称度)
(5)产品性能试验检测技术(热变形试验 噪声测量 静刚度试验 振动和动刚度试验 位置(定位)精度试验 主轴回转精度)
2.产品生产过程质量控制
(1)产品生产过程质量控制概念(基本概念 制造过程质量分析和控制的基本方法)
(2)制造过程统计分析与控制(分布曲线法 工序能力和工序能力指数 生产过程控制的抽样检验点图方法)
(3)质量控制的相关分析(相关图(散点图)法 回归方程法 相关系数 相关分析在质量控制中的用途)
3.质量管理及质量管理体系
(1)质量和产品质量(质量定义 产品质量和质量特性 产品质量的形成与质量职能及职责)
(2)质量管理和全面质量管理(质量管理的含义 质量管理的发展 全面质量管理的特点 全面质量管理的基础工作)
(3)ISO9000族标准与质量体系(ISO9000族标准的产生与发展 ISO9000族标准的构成与内容 ISO9000核心标准内涵 质量管理体系的八个原则和具体措施 质量管理体系的基础 质量管理原则和体系基础在环境与职业健康安全管理体系中的应用)
(4)企业质量管理体系建立(基础 过程 体系运行)
(5)质量管理体系的审核和认证(内部审核和外部审核 质量管理体系认证)
(6)产品质量认证(类型 程序)
七、数字控制技术及机械制造自动化
1.数字控制技术和数控机床
(1)数字控制技术(计算机基本知识 计算机的功能、组成和工作流程 )
(2)数控机床(结构组成及工作过程 运动控制方式 结构特点 性能特点 分类)
(3)数控(NC)系统和计算机数控(CNC)系统的构成、工作原理和功能(数控(NC) 计算机数控(CNC)系统)
(4)CNC控制程序编制(内容及步骤 手工编程与自动编程 数控机床的坐标系 程序结构与程序段格式 数控加工程序的指令代码 子程序 用户宏程序的编程 CNC编程应用)
(5)可编程逻辑控制器(PLC)(基本工作原理 基本概念和特点 组成 类型 各部分的作用 主要性能指标 顺序逻辑表示 数控(CNC)机床中的应用 编程应用)
2.机械制造自动化
(1)机械制造自动化技术及其发展(基本概念 发展阶段)
(2)机械制造自动化设备(刚性自动化加工设备 柔性自动化加工设备 机械制造柔性自动化系统)
(3)物流自动化(物流概念和功能 物流自动化设备分类)
(4)信息自动化(信息涵义与信息流/信息系统 信息源 信息采集与输入 信息处理 信息传输与交换 信息存储)
(5)管理自动化(管理含义及其自动化基础 决策支持系统 MRP-Ⅱ)
3.计算机辅助设计(CAD)的应用
(1)计算机辅助设计(CAD)的功能、组成和应用(功能 组成 主要应用)
(2)零件图的CAD绘制过程(创建绘图环境 绘制视图 标注零件尺寸 标注技术要求 添加技术要求和标题栏 保存图形)
4.CAPP、CAM、CAE、CIMS
(1)计算机辅助工艺规程设计(CAPP)(基本概念 基本功能和应用 组成及工作流程)
(2)计算机辅助制造(CAM)(基本概念 基本功能和应用 组成及工作流程)
(3)计算机辅助工程(CAE)(有限元分析 优化设计 仿真技术 试验模态分析)
(4)计算机集成制造系统(CIMS)(基本概念 组成 功能)
5.计算机网络技术
(1)网络技术基本知识
(2)网络在工程中的应用(分布式控制系统(DCS) 现场总线控制系统(FCS))
(3)主要工业现场总线基本知识
(4)电路接口技术基本知识(RS-232串行数据通信接口标准 RS-485串行数据通信接口标准 USB串行数据通信接口标准)
(5)无线网络通信基本知识(无线传感器网络 无线通信网络种类)
6.计算机仿真、虚拟制造技术、人工智能和专家系统
(1)计算机仿真(基本原理 仿真方法 仿真器 仿真过程 在机械系统中应用)
(2)虚拟制造技术(定义及特点 虚拟制造类型)
(3)人工智能和专家系统(基本知识)
Ⅲ.有关规定和说明
一、考试形式
机械工程师资格考试分为综合素质考试和综合技能考试两个单元分别进行,均为笔试。
第一单元:综合素质考试时间为3小时。试卷中所有考题应考者一律必答。应考者需携带计算器、三角板和圆规。
第二单元:综合技能考试时间为2小时。试卷中包含必答题和选答题。应考者可携带《机械工程师资格考试指导书》,需携带计算器、三角板和圆规。
第一单元:综合素质考试试卷满分为120分,第二单元:综合技能考试试卷满分为80分。两个单元满分之和为200分,120分为及格分(其中第二单元不低于50分)。
二、命题原则
1.命题以《大纲(试行/2010年版)》为依据。
2.考试命题覆盖《大纲(试行/2010年版)》所规定的所有考试内容,适当突出重点内容,加大重点内容的覆盖密度。《大纲(试行/2010年版)》的重点内容为机械产品设计、机械制造工艺、机械产品质量控制和企业管理与工程经济。
3.综合技能为考核重点,即注重考核应考者运用所学知识分析和解决实际问题的能力,以应用性、实用性考题为主。
4.考试题型为选择题、简单应用题和综合应用题。第一单元考试试卷中,含80分的选择题和40分的简单应用题,满分为120分;第二单元考试试卷中,含40分的简单应用题(考生选答)和40分的综合应用题(考生选答),满分为80分。综合应用题按照机械产品设计、机械制造工艺、机械产品质量控制和企业管理与工程经济等四个侧重面命题。
第一单元选择题题型:4选1。
第二单元简单应用题:5选4。
第二单元综合应用题:4选2。
5.选择题主要考查“了解”、“熟悉”和“掌握”层次的基本知识和基本技能;应用题主要考查应考者运用“熟悉”和“掌握”层次的知识,进行任务分析、论述、计算、绘图以及简单设计的基本能力。
6.试卷中合理安排不同难易程度的试题。每份试卷中不同难度(易、较易、较难、难)试题的分数比例一般为2∶3∶3∶2。
三、辅导材料和参考书
[1]冯之敬,汪士治,陈耀昌,房贵如,等.机械工程师资格考试指导书[M].2版.北京:中国机械工程学会,2010.
[2]中国机械工程学会.机械工程师继续教育丛书有关分册[M].
[3]机械设计制造及其自动化、工业工程、管理工程等专业普通高校本科有关教学用书等。
Ⅳ、样题示例
第一单元 综合素质考试试卷
一、选择题
1.强制性的国家标准代号是( )。
A.GB/Z B.JB C.GB D.GB/T
2.图形中虚线与点划线重叠时应画( )。
A.粗实线 B.虚线 C.不画线 D.点划线
3.孔尺寸为 ,与其配合的轴尺寸为 ,其最大配合间隙是( )。
A.0.03 B.0.02 C.0.01 D.0.04
4.测定灰铸铁、轴承合金等具有粗大晶粒或组成相的金属材料的硬度及钢件退火、正火和调质后的硬度,多采用( )。
A.洛式硬度计 B.布氏硬度计
C.维氏硬度计 D.努氏硬度计
5.65Mn钢弹簧类零件常用的强韧化的方法是( )。
A.分级淬火 B.淬火+中温回火
C.等温淬火 D.亚温淬火
6.正确啮合传动的渐开线直齿圆柱齿轮副必须满足( )。
A.齿数相同,齿形相同 B.模数相同,齿形角相同
C.模数相同,齿数相同 D.齿形相同,齿形角相同
7.为获得最小壁厚0.8mm的铝合金件,应采用的铸造方法是( )。
A.砂型 B.金属型 C.低压 D.压铸
8.锻造比通常的表示方法是采用工件变形前后的( )。
A.截面比、长度比、高度比 B.长度比、高度比、体积比
C.高度比、体积比、截面比 D.体积比、截面比、长度比
9.三大类焊接方法是指熔焊,钎焊和( )。
A.电弧焊 B.气焊 C.压焊 D.激光焊
10.应按概率法求解装配尺寸的装配方法是( )。
A.修配装配法 B.完全互换装配法
C.调整装配法 D.部分互换装配法
11.汽车车身底漆普遍采用的涂漆方式是( )。
A.空气喷涂 B.高压无气喷涂
C.阴极电泳喷涂 D.静电粉末喷涂
12.我国专利法规定,授予发明和实用新型专利权的实质条件是( )。
A.新颖性、科学性、实用性 B.新颖性、创造性、实用性
C.新颖性、实用性 D.新颖性、美观性
13.企业控制污染物排放,应优先执行( )
A.国家分行业排放标准 B.地方排放标准
C.国家综合排放标准 D.企业自定的排放标准
14.为检测加工后的箱体外形尺寸 ,应采用的量具是( )。
A.游标卡尺 B.卷尺 C.千分表 D.万能测长仪
二、简单应用题
1.分别说明以下配合属于何种配合形式:H7/m6,H8/h7,H7/js6,H7/g6 H8/s7。
2.直柄麻花小钻头选用哪种合金工具钢,采用哪种热处理工艺。
3.举例说明在什么情况下螺纹连接要防松,防松方法可分为哪几类。
4.近十年来,我国球墨铸铁件年产量在铸件总产量中的比例翻了一倍,请从球墨铸铁的铸造性能和综合力学性能两方面分析其快速增长的原因。
5.机械零件失效类型有哪三大类,常见的曲轴失效形式属于三大类中的哪一类。
第二单元 综合技能考试试卷
一、简单应用题
1.钟表等精密仪器的重要弹性元件选用哪种铜合金制造,这类铜合金通过哪种热处理工艺方法进行强化。
2.附图1所示为某试验用小电炉的炉门启闭机构,炉门关闭是在位置E1,敞开时在位置E2,试设计一平面四杆机构来实现炉门启闭的操作。
3.某零件的铸造毛坯如附图2所示,其内孔2与外圆1有偏心。外圆1为非加工面,加工内孔2后要求零件的壁厚均匀,为此,在设计工艺过程时一种方案是选择外圆1作为粗基准,采用三爪卡盘夹紧外圆1,加工内孔2;另一种方案是选择内孔2作为粗基准,采用四爪卡盘夹持毛坯外圆1并按内孔2找正后夹紧毛坯加工内孔。试分析:
(1)哪一种方案能保证达到设计要求,保证壁厚均匀,为什么。
(2)若要求保证内孔的加工余量均匀,应选择哪一种方案,为什么。

4.有建厂方案,设计生产能力为年产产品1000件,预计每件售价为p=500元/件,固定总成本费用为a=10万元/年,单件产品的可变成本费用为b=200元/件,预测该产品的年销售量可达到x=1000件。试求:(1)该产品盈亏平衡点的销售量。(2)该产品的预计年利润。
5.某主轴零件如附图3所示,现要求采用通用量仪检测图中有配合的尺寸和各形位误差。要求说明:(1)各尺寸误差和形位误差的测量器具及规格参数、检测方法。(2)各误差值如何确定。(3)画出测量跳动误差的检测示意图,指出相应的器具名称。

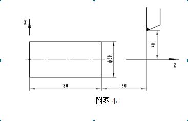
6.某轴类零件如附图4所示,用数控车床车削外圆Φ50时,用绝对值直径派编程程序如下(要考虑进刀空刀位),要求补充完整该程序:
N10 G90 G54 ____ Z130
N20 G00 ____ Z82 S200
N30 ____ X50 Z-2 F50
N40 G00 X55 ____
N50 G00 X80 ____ M05
N60 M30

转载自中国机械工程学会网站(http://www.cmes.org/file/c6i39t2011524142139.html)
